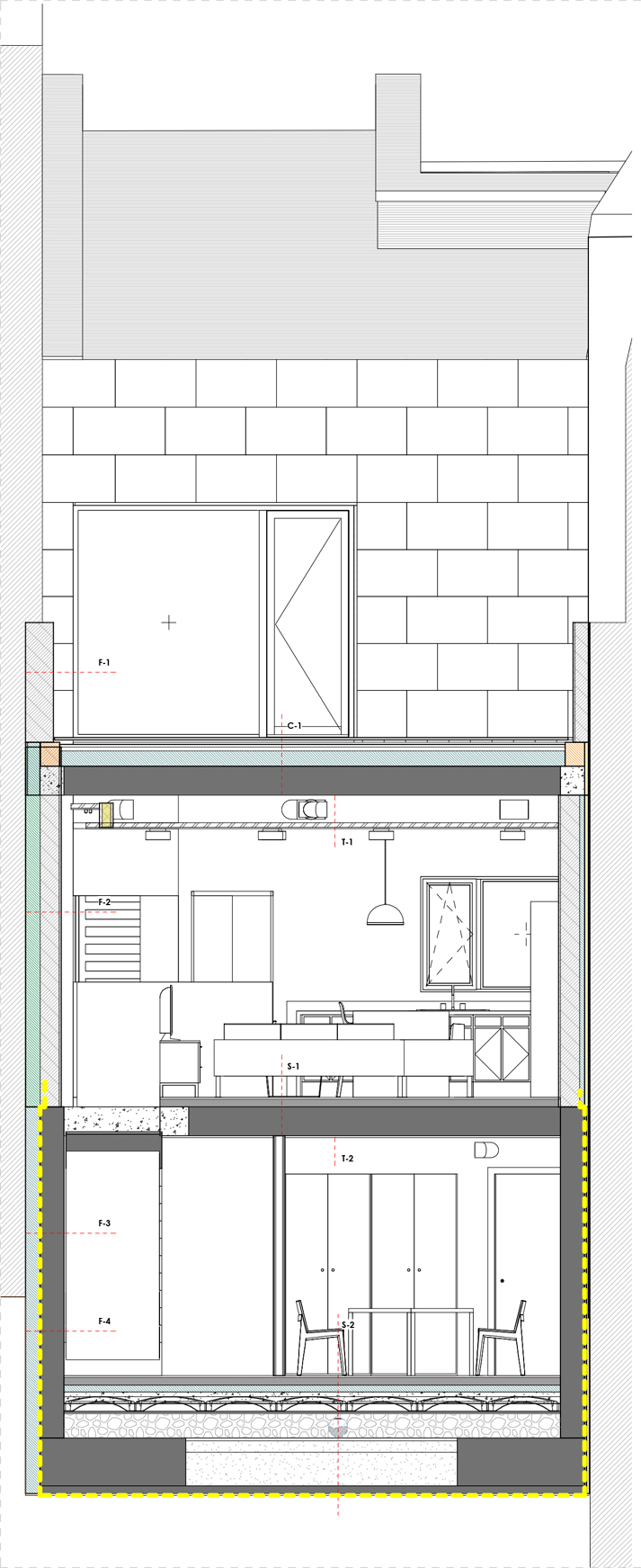
PROYECTO VIVIENDA ENTRE MEDIANERAS

LOCALIZACIÓN CALLE MANUEL RODRIGUEZ 78, PORRIÑO

FECHA AGOSTO 2020

CLIENTE PARTICULAR

© 2022 Éder Ozores Arquitecto | Aviso Legal | Política de Cookies